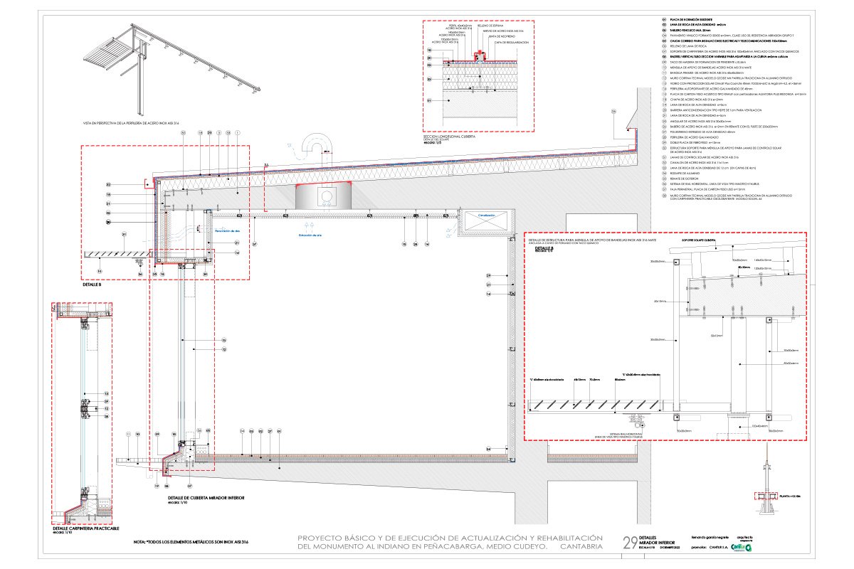
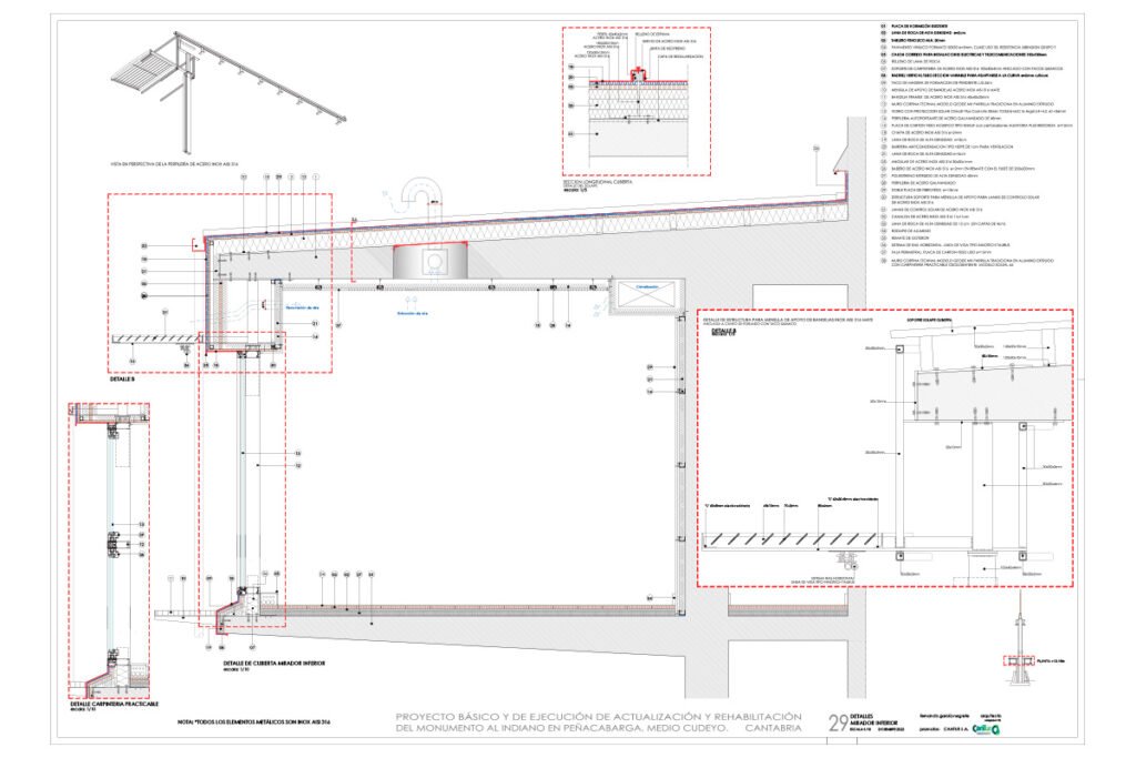
REHABILITACIÓN DEL MONUMENTO AL INDIANO EN PEÑA CABARGA
Proyecto realizado en 2024
El Monumento al Indiano es un proyecto del arquitecto Ángel Hernández Morales y del ingeniero de caminos José Calavera, construido en 1966 y situado en la cumbre del Pico Llen a 569 m de altitud. Tiene, por tanto, excelentes vistas hacia la bahía de Santander y a gran parte de la provincia, y se trata de una de las obras de mayor interés de la arquitectura contemporánea de la región.
Sin embargo, el conjunto ha sufrido un estado de abandono durante muchos años y sometido a las excepcionales condiciones climáticas de lugar, lo que ha originado un deterioro generalizado de sus elementos constructivos. Esto ha exigido una rehabilitación integral de la torre y la pasarela, realizada en el año de 2024 por iniciativa de la empresa Cantur S.A., del Gobierno de Cantabria. Otras actuaciones en marcha renovarán próximamente el edificio de la cafetería restaurante y la urbanización del conjunto.
























